歡迎訪問泰州通用舞臺設備有限公司舞臺阻燃幕布官方網站!
泰州通用舞臺設備有限公司
當前位置:舞臺阻燃幕布 > 新聞資訊 > 技術交流技術交流
防火隔離幕Safety curtain——舞臺、觀眾廳分隔 阻斷火源及有害煙氣的擴散
  • 2022-08-29
  • 通用舞臺
  • 3109

防火隔離幕Safety curtain——舞臺、觀眾廳分隔 阻斷火源及有害煙氣的擴散

  劇場是群眾聚集的公共場所,劇場火災往往造成生命和財產的重大損失,而舞臺又是劇場火災發生的危險區。舞臺易發生火災的主要原因是:舞臺上空及兩側燈具多,燈具產生的高溫容易烤燃與之相鄰的幕布等易燃物;演出中經常使用效果煙火,因明火使用不當造成火災;舞臺內設備多,帶電設備及電路復雜,電線或帶電設備失火也多有發生;此外,管理不善也是發生火災的原因之一。由于臺塔很高,一旦舞臺上失火,臺口相當于煙囪效應的“進風口”,冷空氣中的氧氣促進燃燒。而且,由于觀眾廳使用了大量易燃裝飾材料,火勢極易向觀眾廳蔓延,火焰和有害煙氣有可能造成人身傷害。因此,需要一種設備,可以在舞臺發生火災時,迅速將舞臺和觀眾廳分隔成兩個防火區域,防止燃燒抽吸氧氣使火勢進一步擴大,同時可阻斷火源及有害煙氣的擴散,爭取更多的逃生時間。

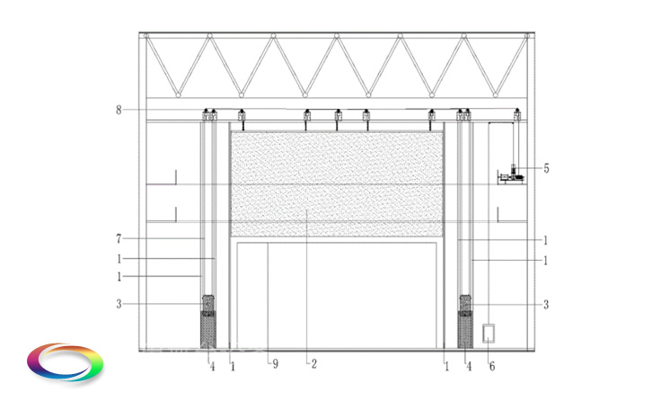
防火隔離幕Safety curtain——舞臺、觀眾廳分隔 阻斷火源及有害煙氣的擴散

  設置在舞臺臺口處,在火災情況下可迅速關閉臺口,隔離舞臺與觀眾廳或舞臺以外的其他區域,防止火災蔓延的設備。剛性結構,有規定的耐火極限、抗風壓極限、隔離密封極限、關閉過程時間極限及安全控制等特性要求??捎懈袈暪δ?,當設置在側臺口或后臺口時主要以隔聲功能為主。

  臺口防火幕是一道安全防火專用門,在劇場發生火災事故或每場演出結束時,該防火幕落下,把舞臺與觀眾廳分隔成兩個防火區域。

  在緊急情況下,防火幕能在起動后內,靠重力下降到位;當距主舞臺面2.5米時開始阻尼下降,接近臺面時再次減速,以避免傷及人及對臺面的沖擊。防火幕的耐火極限符合國家相關標準,能承受觀眾廳與舞臺之間由于火災引起的壓差。

  在防火阻燃幕布的兩側設有運行導軌,幕體四周與建筑墻體應裝有密封裝置,以便防火幕處在下降位置時能有效密封煙和火。

  帶有提升、下降和緊急停車按鈕的操作盤可以實現就地操作。手動釋放機構設置于臺口內側,并在消防控制室內有運行控制和狀態顯示。

  防火阻燃幕布傳動形式要求為:鋼絲繩曳引帶配重(對稱布置)的方式,電動上升,靠自重阻尼分不同速度段下降。

更多產品資料及報價,詳詢請致電。
李經理:138-0143-6501
微信
手機
QQ在線詢價